ARQUITECTURA + DISEÑO + FABRICACIÓN
Diseñamos y construimos espacios que elevan tu forma de vivir
Tu proyecto comienza aquí
SERVICIOS
-

Arquitectura
Diseñamos proyectos de arquitectura integrales, desde la etapa conceptual hasta el desarrollo técnico y la gestión necesaria para su ejecución. Nuestro enfoque combina diseño contemporáneo, eficiencia constructiva y soluciones adaptadas a cada contexto, asegurando proyectos viables, claros y bien resueltos.
Trabajamos tanto en proyectos residenciales como comerciales, acompañando al cliente en cada etapa del proceso
-

Fabricación y soluciones a medida
Contamos con capacidad de fabricación propia para desarrollar soluciones diseñadas específicamente para cada proyecto. Este servicio está orientado a clientes y proyectos que requieren piezas únicas, prototipos, mobiliario especial o soluciones constructivas personalizadas.
La fabricación forma parte del proceso de diseño, asegurando coherencia, precisión y calidad en cada etapa.
-

Diseño de interiores
Desarrollamos proyectos de interiorismo y mobiliario personalizados, donde el diseño espacial y el detalle constructivo se integran desde el inicio. Diseñamos ambientes funcionales y coherentes, junto con piezas de mobiliario pensadas específicamente para cada espacio.
Este servicio permite un control total del resultado final, desde la idea hasta la materialización.
-

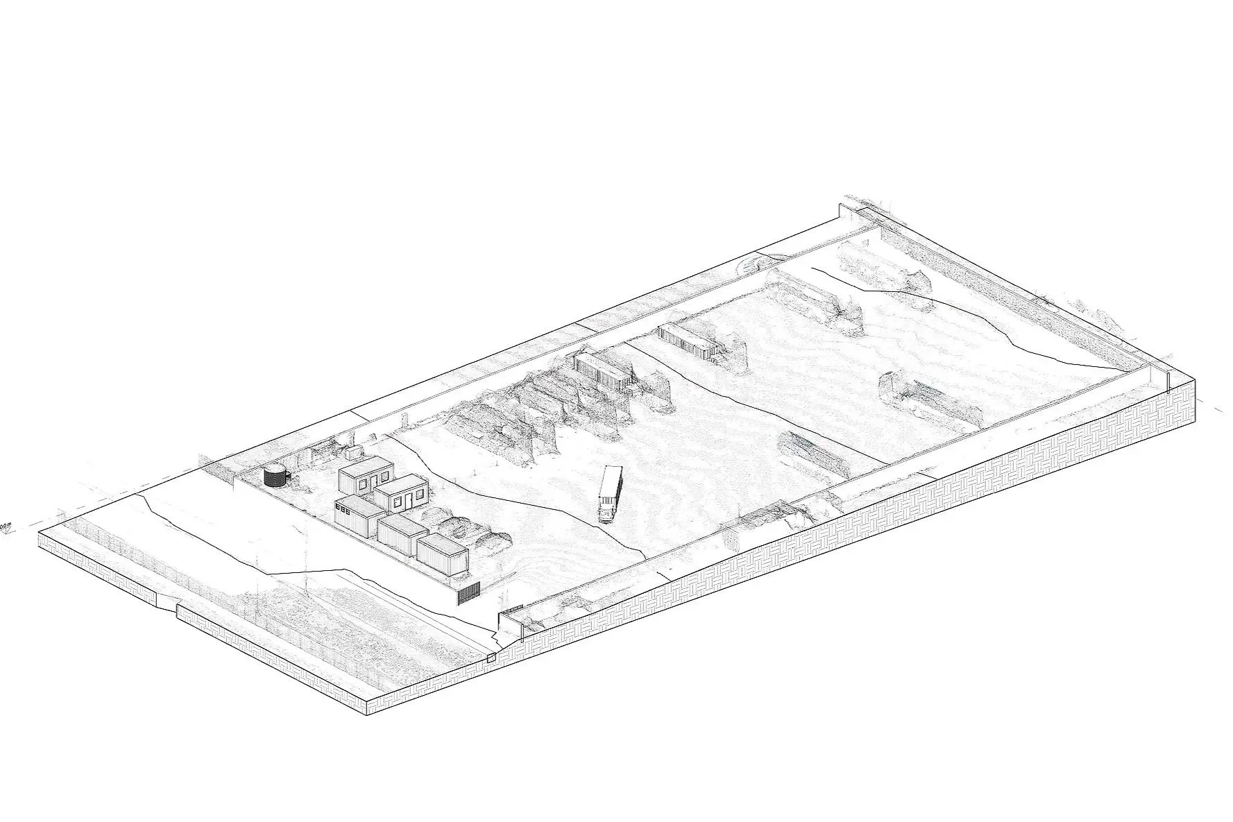
Levantamiento Topográficos
Realizamos levantamientos topográficos mediante tecnología de dron y sistemas de alta precisión, entregando información técnica confiable para proyectos de arquitectura, urbanismo y planificación territorial.
Este servicio permite tomar decisiones de diseño con datos reales desde las primeras etapas del proyecto, e incluye apoyo técnico para procesos de subdivisión predial, regularización y análisis normativo del terreno, facilitando la correcta planificación y viabilidad del proyecto.
¿En qué etapa está tu proyecto?
¿Necesitas regularizar una propiedad?
Te ayudamos a ordenar antecedentes y desarrollar el proceso de regularización de tu vivienda o construcción.
¿Necesitas subdividir un terreno?
Evaluamos tu terreno y desarrollamos la propuesta técnica para realizar subdivisiones según normativa vigente.
¿Necesitas un levantamiento fotogramétrico?
Realizamos levantamientos con dron para obtener información precisa de tu terreno y apoyar el desarrollo de proyectos.
¿Necesitas desarrollar un proyecto nuevo?
Diseñamos proyectos arquitectónicos desde la idea inicial hasta su desarrollo técnico.
¿Tienes un terreno y no sabes por dónde empezar?
Te orientamos para definir factibilidad, normativa y el mejor camino para desarrollar tu proyecto.
Colección Áurea 01
ARQUITECTURA
DISEÑO DE INTERIORES
FABRICACIÓN DE SOLUCIONES A LA MEDIDA
OTROS PROYECTOS
Esta sección reúne una selección de proyectos y exploraciones de diseño desarrolladas por nuestro estudio. Cada propuesta refleja nuestro enfoque en arquitectura, materialidad y relación con el entorno.
Síguenos en las redes sociales
Contáctanos
¿Te gustaría que trabajemos juntos? Déjanos tus datos y nos pondremos en contacto contigo muy pronto. Cada proyecto que realizamos es completamente personalizado según las necesidades de nuestros clientes. Será un placer ayudarte a hacer realidad tus sueños.